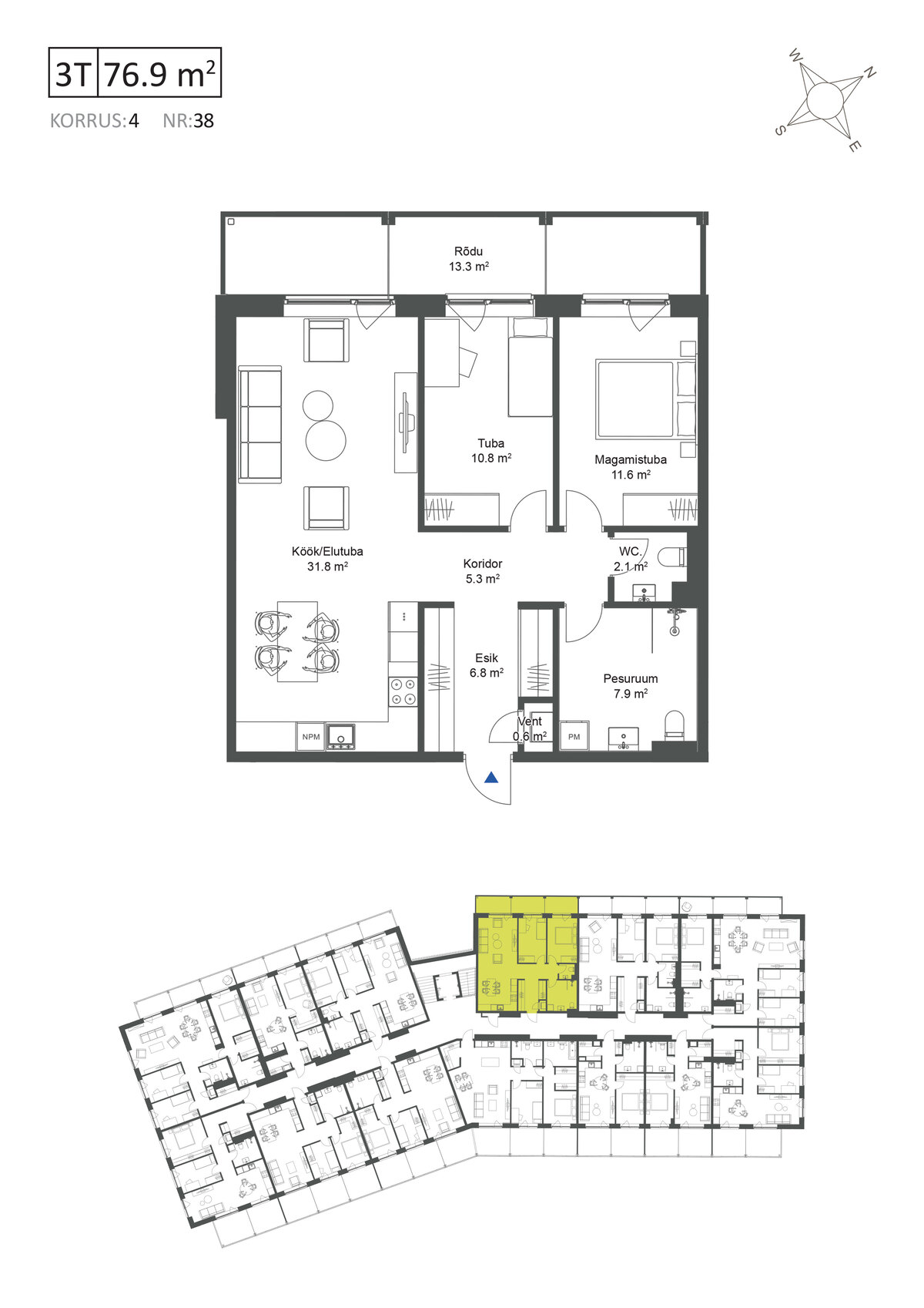
Korter 38
Kotermaa 7
Korrus: 4
Tube: 3
Suurus: 76.9m²
Rõdu: 13.3m²
Hind: 290,000
Elektriauto parkimiskoht garaažis 14 000€
Parkimiskoht garaažis 11 000€
Elektriauto parkimiskoht hoovis 10 000€
Parkimiskoht hoovis 7 000€
Panipaik garaažis 7 000€
Panipaik 1. korrusel 5000€
Kõik korterid on varustatud kvaliteetse köögimööbliga, näidiskorteri hind sisaldab kogu sisustust.
Kotermaa 5 ja 7 siseviimistlus
Korterelamus on valik kahe siseviimistluspaketi vahel. Paketid Lumina ja Iconica, hõlmavad endas tänapäevast minimalistlikku lihtsust.















