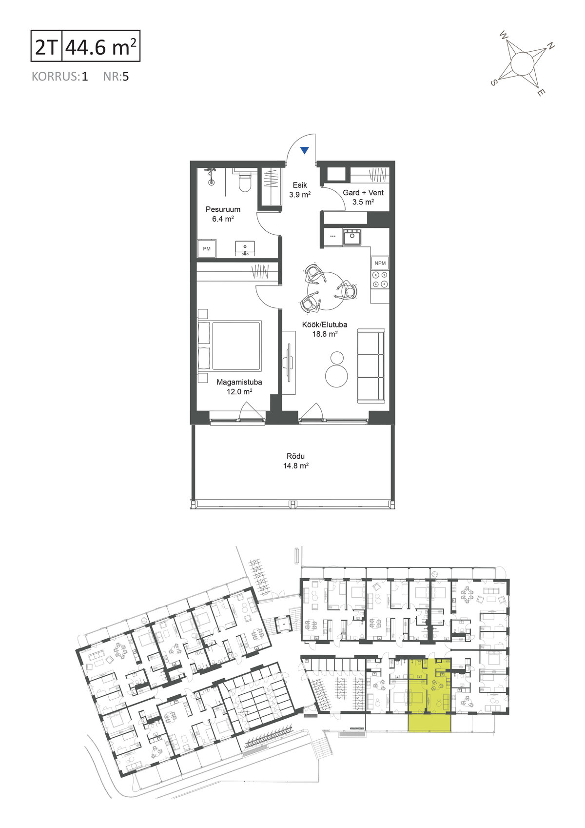
Korter 5
Kotermaa 7
Korrus: 1
Tube: 2
Suurus: 44.5m²
Rõdu: 14.8m²
Hind: 174,000
Elektriauto parkimiskoht garaažis 14 000€
Parkimiskoht garaažis 11 000€
Elektriauto parkimiskoht hoovis 10 000€
Parkimiskoht hoovis 7 000€
Panipaik garaažis 7 000€
Panipaik 1. korrusel 5000€
Kõik korterid on varustatud kvaliteetse köögimööbliga, näidiskorteri hind sisaldab kogu sisustust.
Kotermaa 5 ja 7 siseviimistlus
Korterelamus on valik kahe siseviimistluspaketi vahel. Paketid Lumina ja Iconica, hõlmavad endas tänapäevast minimalistlikku lihtsust.















